长沙243㎡丨尚景家具演绎大户型的呼吸感

本案以「中古侘寂」为精神内核,

摒弃浮华,回归质朴与宁静。

颠覆传统客厅娱乐为中心的布局,
工作、陪伴、休憩,融于日常,

打造以人为本的多功能亲子空间。


客厅空间

以低饱和自然色系构建空间基调,

一抹橄榄绿悄然点睛,

让静谧中透出生活的温度。


多功能家庭角

大人低头工作,孩子抬头玩耍,

同一片光下,

各自生长,彼此靠近。

好的空间,

让陪伴无需刻意相随。


餐厅空间

经典圆桌,三餐四季。

简约空间,承载日常。

吃饭,也成了享受空间的过程。


设计巧思

01

空间无界

生活流动


02

光影交错

日常展开



03

牛角靠墩

温柔惬意


灵感清单


111111111


common list (1).jpg



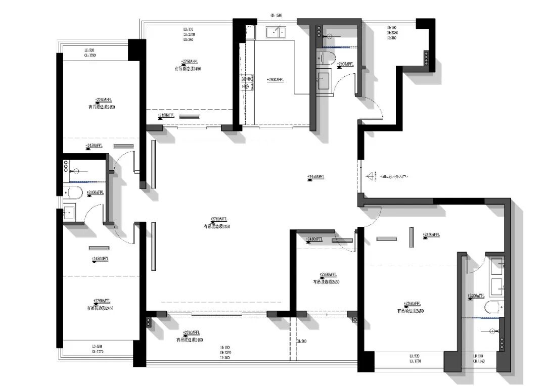
原始框架图


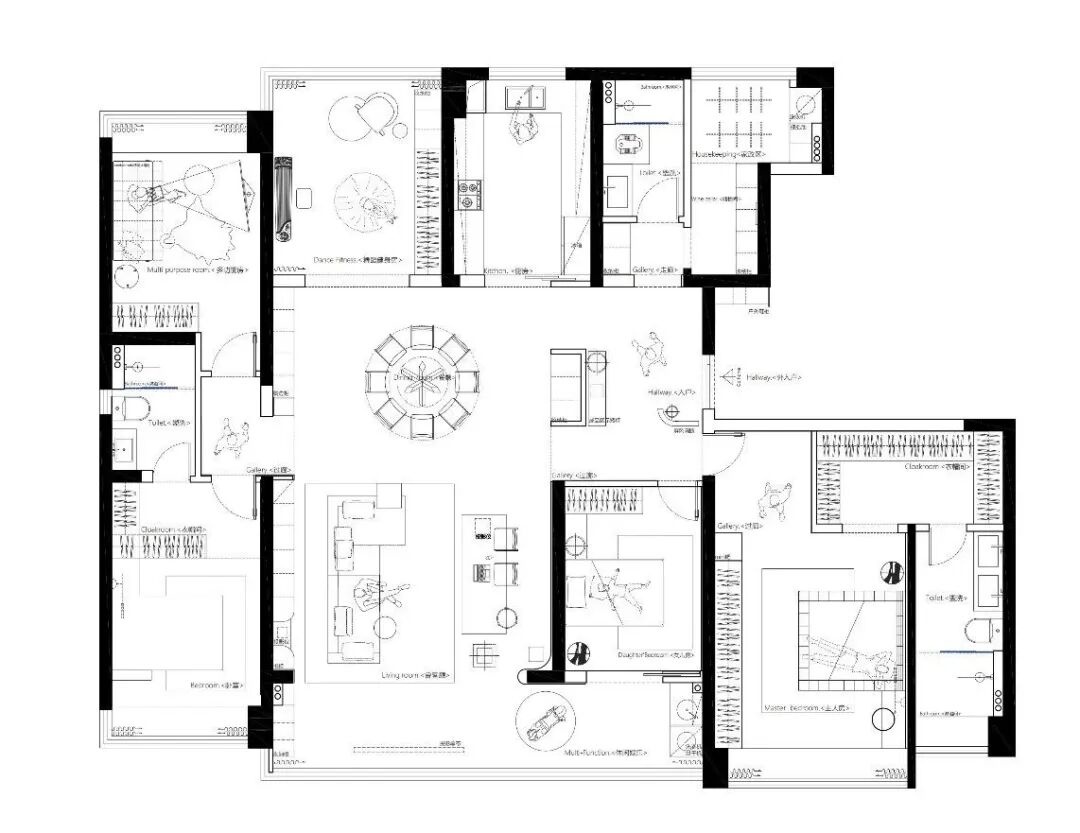
平面布局图


项目与主创

-项目名称 - 

栖心间· 物我相安


-项目面积 -

247㎡


- 设计团队 -

长沙集禾新造设计


- 设计总监 - 

杨丛昊 


- 设计主案 - 

王思雨


- 家具品牌 -

尚景家具

微信图片_20251020152758.jpg

推荐文章

索取目录

推荐文章

珠海190㎡丨解锁尚景家具的人居美学

当珠海大宅邂逅尚景家具,空间便不再只是居所,而是审美生活的容器。

长沙243㎡丨尚景家具演绎大户型的呼吸感

本案以「中古侘寂」为精神内核,摒弃浮华,回归质朴与宁静,打造以人为本的多功能亲子空间。

工程案例丨尚景家具在日本诊所的空间表达

这是日本丰田卫星城诊所项目。尚景家具深耕日本19年,不仅走进无数家庭,也融入医院、酒店等公共空间。

郑州160㎡丨简练线条 × 温润质感,构筑理想生活

空间因家具而生动。本案以自然木纹与简练线条,融合温润质感与现代美学,营造沉稳、舒适的生活氛围。

广州8x8丨64㎡,装下你对空间的所有想象

这不是一个传统的家居展厅,在这里,没有“焦点”,没有哪个展品会抢走你的视线,反而每一步,都有新的风景。

广州8x8丨如何让空间真正活起来?

我们认为,空间不该一成不变,通过新的家具组合,它能不断呈现新的可能。

售前-天然木皮养护指南

天然木皮取材于真实木材,保留了木材的天然质感,也继承了木材的天然特性,日用使用需注意防护。

售前-布套拆洗指南

为避免布套因清洗不当造成损坏,清洗前请务必完成魔术贴防护操作。

售前-床垫尺寸注意事项

为确保您选购的床能匹配家中现有的床垫(或计划购买的新床垫),请在下单前完成这些操作。

8x8合作流程

欢迎了解我们的8×8合作流程:6个关键步骤,让合作更高效!

8x8落地前拍摄指南

拍摄不踩坑!一张图看懂「8×8落地前拍摄指南」,请按指南拍下门店关键视角。

门店列表

Copyright © 2022  songdream尚景家具  网页版权所有  粤ICP备09109127号-1